HÔTEL LA PETITE PLAGE à ANTIBES (06)

Hôtellerie / PE avec hébergement
HÔTEL LA PETITE PLAGE à ANTIBES (06)
HÔTEL LA PETITE PLAGE à ANTIBES (06)
HÔTEL LA PETITE PLAGE à ANTIBES (06)
HÔTEL LA PETITE PLAGE à ANTIBES (06)

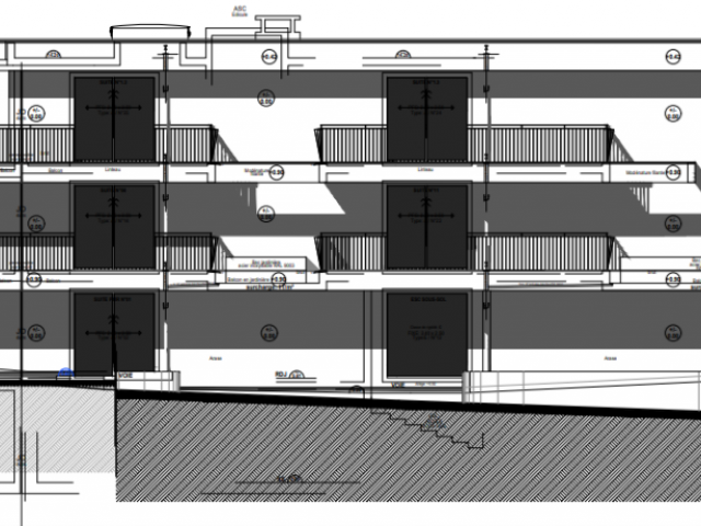
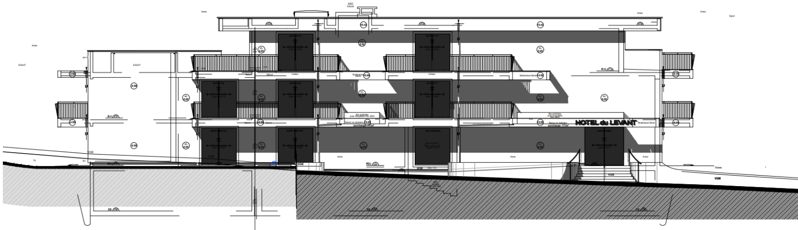
L'HÔTEL LA PETITE PLAGE situé à Antibes (à proximité de Nice) dans les Alpes-Maritimes (06) fait confiance à SSI PROJETS pour la réalisation de la mission de Coordination SSI. Cette mission a pour but de définir les besoins en fonction de la réglementation en vigueur et d’établir le Cahier des Charges Fonctionnel pour l'installation du Système de Sécurité Incendie.

Cet établissement est classé en ERP de Type O avec activités X & N de 5ème catégorie.

Dans le cadre de ce projet, une demande de Permis de Construire est déposée auprès de la mairie afin d’obtenir l’avis de la Sous-Commission Départementale de Sécurité ERP/IGH des Alpes-Maritimes (06). Ce PC est composé du Cahier des Charges Fonctionnel du SSI réalisé par SSI PROJETS.

Après travaux, cet établissement sera équipé :

- D’1 SSI de Catégorie A avec un Equipement d’Alarme de Type 1,
- D’1 Zone d’Alarme (ZA) : Evacuation avec des Diffuseurs Sonores, des Diffuseurs Lumineux,
- D'1 Zone de Compartimentage (ZC) : Portes à Fermeture Automatique,
- De 9 Zones de Détection Automatique (ZDA) : Détecteurs Automatiques d’Incendie,
- De 4 Zones de Détection Manuelle (ZDM) : Déclencheurs Manuels,
- De 3 Arrêts Techniques : Mise en fonction des BAES/BAEH, Coupure sonorisation d'ambiance, Ouverture de la porte automatique coulissante (Demande du MOE).

Dans le cadre de notre mission, un Dossier d’Identité du SSI sera réalisé conformément à la norme NF S61-932.

Si vous avez besoin d’un Coordinateur SSI sur la région PACA (Gap, Embrun, Briançon, Barcelonnette, Manosque, Digne-Les-Bains, Aix-en-Provence, Marseille, Avignon, Toulon, Fréjus, Antibes, Nice) ou sur la région Rhône-Alpes (Grenoble, Chambéry, Annecy, Lyon), faite confiance à SSI PROJETS.

N’hésitez pas à nous contacter au 09 77 57 42 84 ou sur contact@ssi-projets.fr.